4056 Cochran StreetSimi Valley, CA 93063




Mortgage Calculator
Monthly Payment (Est.)
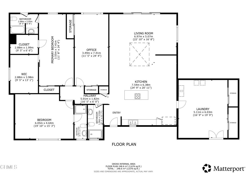
$4,220Welcome to this spacious single level 3 bedroom, 3 bath home offering a well designed layout ideal for both everyday living and entertaining. Upon entry, you're greeted by a formal living room that flows seamlessly into the home's heart: the open concept kitchen, dining, and family room.The expansive kitchen features beautiful wood flooring, a large center island with a gas cooktop, eat bar seating, wood cabinetry, a freestanding range and refrigerator, and a built-in dishwasher. The kitchen opens effortlessly to the dining area, which also showcases wood floors and a generous bar, perfect for gatherings. The adjacent family room continues the wood flooring and features sliding glass doors that open to a covered backyard patio, creating an inviting indoor, outdoor living experience.A hallway off the kitchen leads to the private bedroom wing. The first bathroom offers a walk-in shower and convenient access for guests. The spacious primary suite serves as a true retreat, featuring wall to wall carpeting, a ceiling fan, two walk-in closets, and an ensuite bathroom with a bathtub and shower. The second bedroom includes its own ensuite bathroom, wall to wall carpet, and a ceiling fan, while the third bedroom offers wood flooring, a ceiling fan, and two closets for added storage.With its single level design, generous living spaces, and thoughtful layout, this home offers comfort, functionality, and a seamless flow for modern living.
| yesterday | Listing updated with changes from the MLS® | |
| 3 days ago | Listing first seen on site |
This information is for your personal, non-commercial use and may not be used for any purpose other than to identify prospective properties you may be interested in purchasing. The display of MLS data is usually deemed reliable but is NOT guaranteed accurate by the MLS. Buyers are responsible for verifying the accuracy of all information and should investigate the data themselves or retain appropriate professionals. Information from sources other than the Listing Agent may have been included in the MLS data. Unless otherwise specified in writing, the Broker/Agent has not and will not verify any information obtained from other sources. The Broker/Agent providing the information contained herein may or may not have been the Listing and/or Selling Agent.

Did you know? You can invite friends and family to your search. They can join your search, rate and discuss listings with you.