11657 Blossomwood CourtMoorpark, CA 93021




Mortgage Calculator
Monthly Payment (Est.)
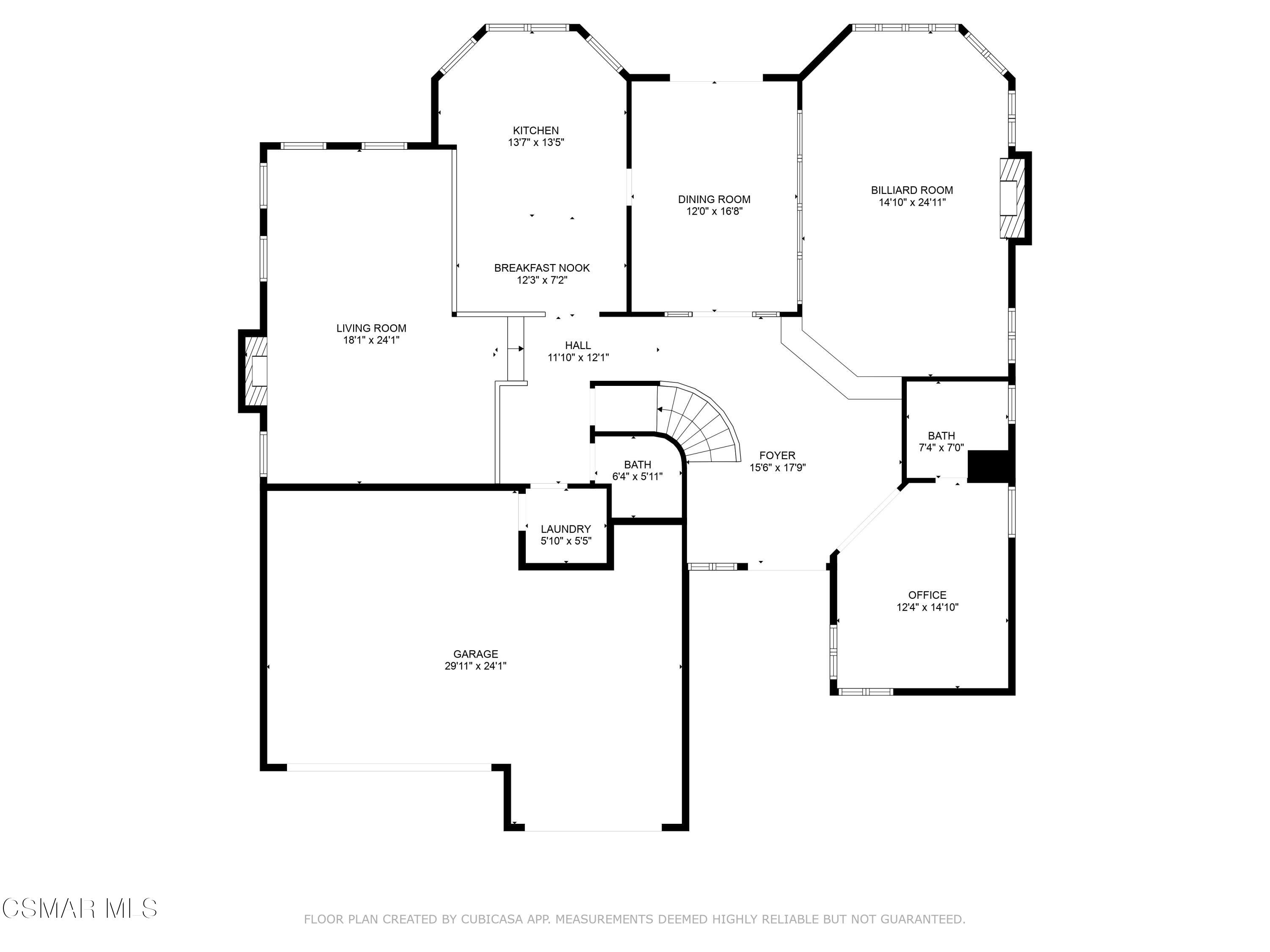
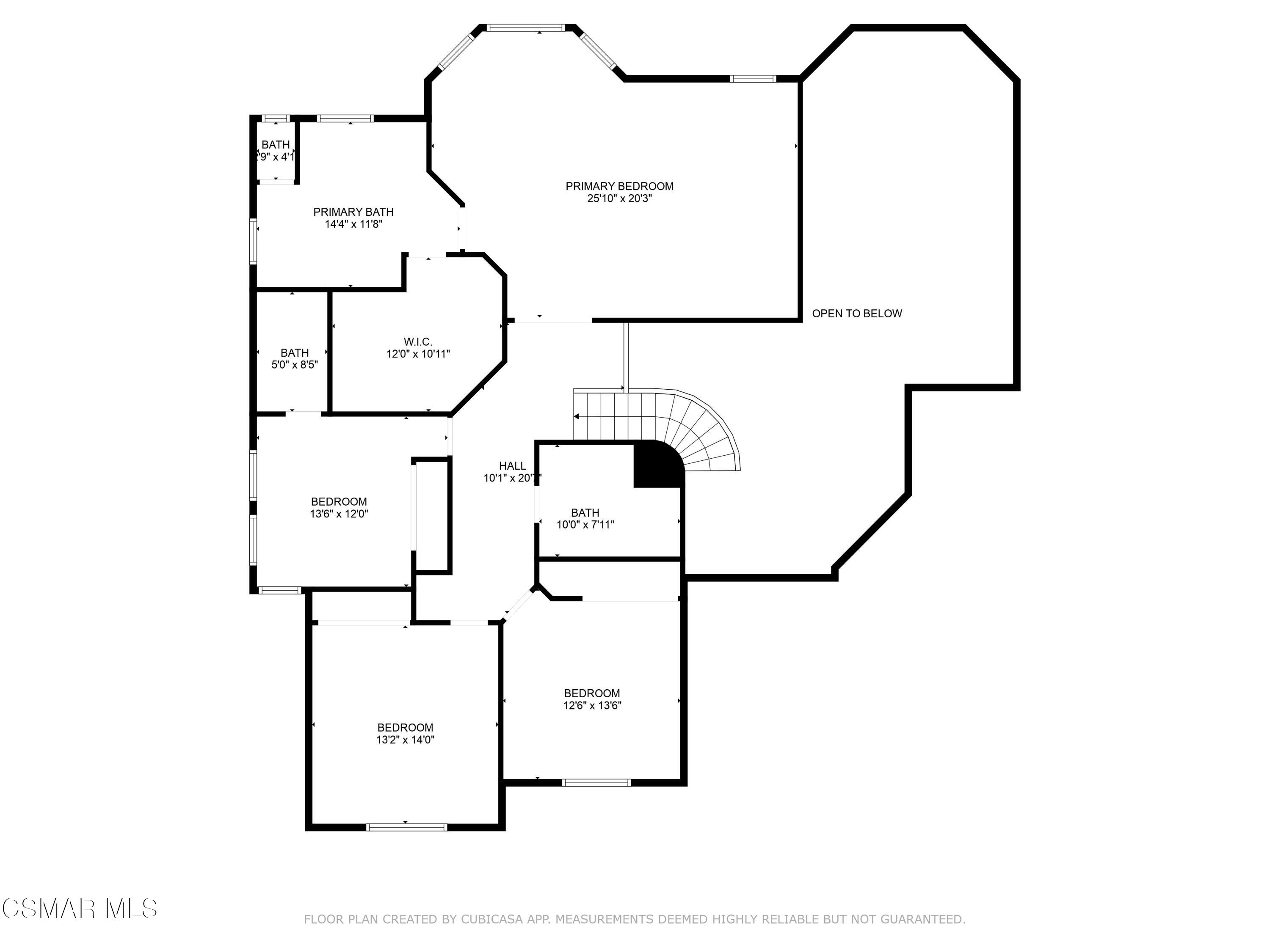
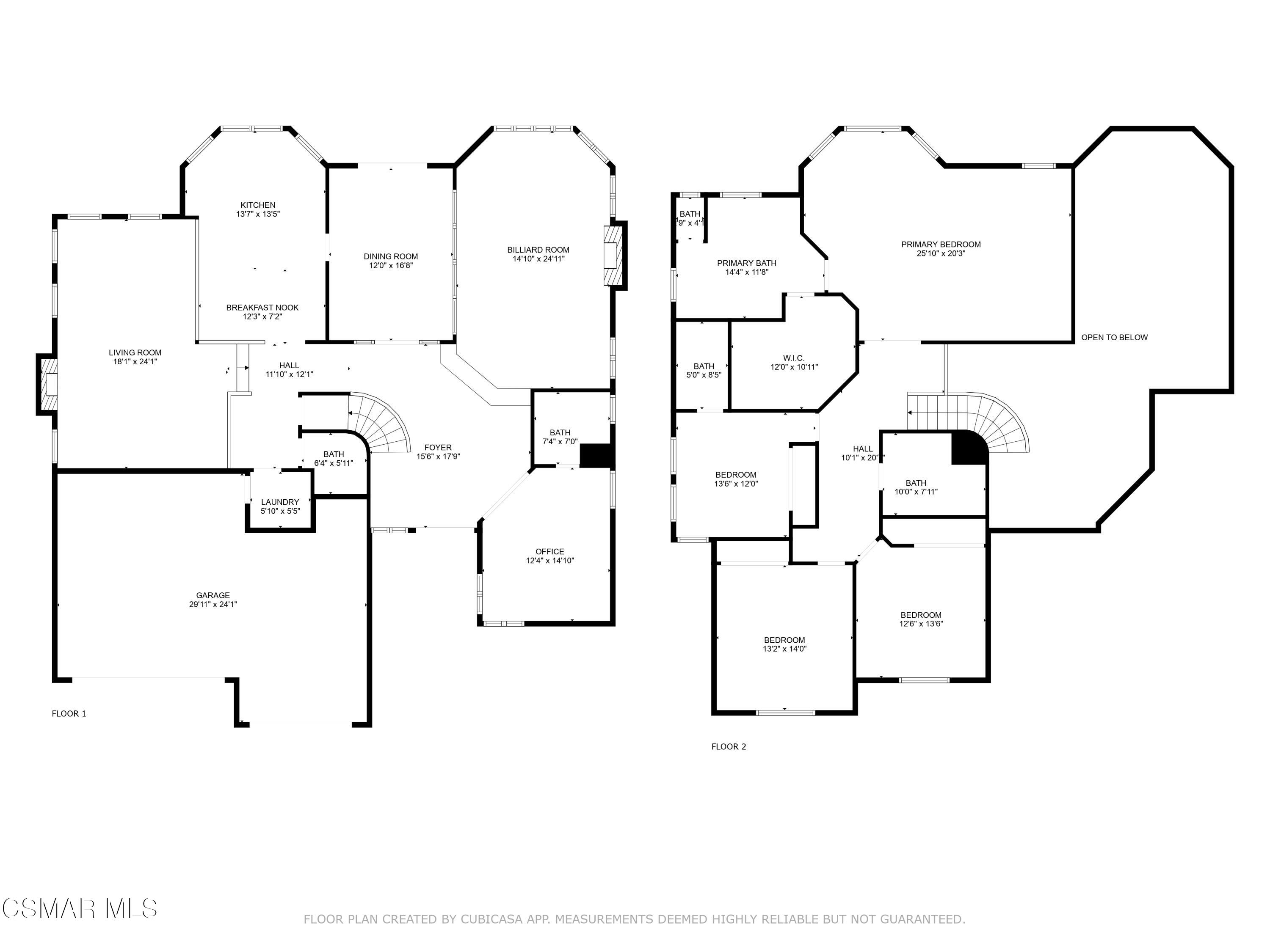
$5,475Welcome to this amazingly spacious Moorpark view home designed for comfort, gatherings, and everyday living. With 5 bedrooms and 4.5 bathrooms across 3,603 square feet of living space, this home offers generous room sizes, a flowing floor plan, and multiple gathering spaces that make entertaining effortless. Entertain your guests in an enormous living room, complete with fireplace and vaulted ceiling, that is currently set up as a billiard room. The adjacent dining room has two floor to ceiling glass walls allowing guests to feel connected while enjoying their own space. The heart of the home is an oversized kitchen with upgraded cabinets, a custom butcher-block island, and attached breakfast nook, all overlooking a sizable family room with fireplace and seamless access to the backyard. A convenient and flexible downstairs suite, featuring its own ensuite bath and a fully integrated entertainment system, provides the perfect retreat for guests, multi-generational living, a home office, or watching your favorite movies or sporting events. Upstairs, you'll find an enormous master bedroom with ensuite bath and large walk-in closet; a nicely remodeled hall bathroom; and three sizeable secondary bedrooms (one with an ensuite bathroom) that provide both privacy and comfort. Thoughtful upgrades include new carpet in the primary bedroom and stairway, fresh interior and exterior paint, and refinished entry wood floors. The back yard is complete with draught tolerant landscaping; orange, lime, lemon, and pineapple guava trees; drip watering system on a programable timer; newly refurbished built-in BBQ (island); and tons of space to entertain and enjoy the beautiful views of the Moorpark sunsets. Beyond its style, this home is remarkably well-maintained with major investments already made for you: a dual HVAC system (2021); replaced main water line (2023); new gutters and leaf filters (2024). Paid solar panels keep energy costs low, while the 3-car garage, and 8,668 sq. ft. lot, quiet cul-de-sac location add everyday practicality and charm. This is the perfect blend of space, upgrades, and value - ready for its next owner to enjoy. Association pool, spa and club house is around the corner.
yesterday | Price changed to $1,199,999 | |
yesterday | Listing updated with changes from the MLS® | |
3 weeks ago | Listing first seen on site |

The information being provided by CSMAR is for the visitor's personal, non-commercial use and may not be used for any purpose other than to identify prospective properties a visitor may be interested in purchasing or leasing. Information relating to properties referenced on this web site may originate from the Internet Data Exchange (IDX) program of CSMAR. This web site may reference real estate listing(s) held by a brokerage firm other than the broker and/or agent who owns this web site. Any information originating from CSMAR, relating to a property, regardless of source, including but not limited to square footages and lot sizes, is deemed reliable but not guaranteed and should be personally verified through personal inspection by and/or with the appropriate professionals. Listing data originating from CSMAR is copyrighted by CSMAR and is protected by all applicable copyright laws. Any dissemination of this information is in violation of copyright laws and is strictly prohibited.
Did you know? You can invite friends and family to your search. They can join your search, rate and discuss listings with you.